NESTE HOUSE
プラスチックスの未来住宅ネステハウス


ネステ社は北欧最大の石油化学会社であるが、そのグループ企業であるネステ・ケミカルズ社が、1992年2月プラスチックス素材を使った実験住宅を、フィンランドのヘルシンキ近郊のポルボーに建設した。

この実験住宅「ネステハウス」は、ネステ・ケミカルズ社が建築分野で利用するのに適したプラスチックス部材の研究開発プロジェクトの一環として、プロジェクトの中で開発された部品の試験や成果の展示の施設として建設された。

この実験住宅は常設の研究開発施設として利用され、他のネステ製品やソーラー・エネルギーや石油暖房などエネルギーシステムの実験の場としても使われている。

この開発プロジェクトはネステ・ケミカルズ社が中心となって2年間にわたって進められ、その費用はおおよそ1000万フィンランドマルカ(約2億円)となっている。ネステ・ケミカルズ社は建築分野でのプラスチックスの利用拡大を狙ってこの開発プロジェクトを始めた。


実験住宅の概要


ネステハウスはフィンランドで著名な建築家であるジャコ・ラポティー教授によって設計された。2階建て延べ床面積250m2のこの実験住宅は青い丸パイプの柱と白い壁とフラットな屋根といったかなりニュートラルなデザインとなっている。

実験住宅にはさまざまなタイプがあるが、このネステハウスは住宅そのものは実験の対象ではなく、開発された部材がどう組合わせられるか、さらに具体的な場に取付けてわかりやすく展示するというのが狙いとなっている。

したがってトイレや寝室などには開発された部材がなく、施設用のトイレを除いて、こうしたスペースは実験住宅には用意されていない。

あくまでも開発された部材の検証と展示が目的で、多くのモデルハウスにあるような生活シーンを演出する家具調度品類は皆無であるが、必ずしも居住できないプランではない。これは躯体や外壁エレメント、内壁エレメントなどの検証を考えたからであろう。

現在一般の建築でプラスチックス材料の占める比率は、5%程度に過ぎないが、ネステハウスでは躯体の75%がプラスチックス材料でできている。

この実験住宅では可能な限りプラスチックス材料を使い、さまざまな要求に対応させている。部分的には実用的でない使い方もしている。実際には他の材料と組み合わされたりして使われることになるだろう。

こうしたコンポジット材も含め、プラスチックス材料は、顧客の要求に合わせた材料開発が可能である。これまでもネステ社は建築分野のクライアントと一緒に多く部材開発を進めてきたが、こうしたクライアントとの親密さを拡大するのもこの実験住宅の狙いの一つでもある。

建築材料としてのプラスチックスは、耐候性、耐腐食性、メンテナンスフリー、軽量性といった性質を基本的に持っている。とくにメンテナンスフリーと軽量性は今後の高齢化社会では重要な要求性能となる。

高齢者にとってメンテナンスフリーの材料を使い、住まいの維持費を低く押さえることは必要で、イギリスの高齢者住宅開発プロジェクトのサードエイジ・ハウジング・プロジェクトでも外壁の一部にプラスチックス・サイディングが使われている。

また労働者の高齢化にともない、軽量な建材が歓迎されるようになってきている。

さらにプラスチックスの素材の構成を変えたり、製造過程で添加することによって、強度や耐火性、耐久性などを向上させることが可能である。


エネルギー効率と耐久性の向上そしてリサイクル


プラスチックスはもともと熱伝導率は低いが、ネステハウスではさらに工夫された断熱材を使っているので、エネルギー効率の高い住宅になっている。

またネステ・アドバンスドパワー・システム社の太陽発電ユニットとネステ社が開発した亜硫酸ガスの出ない灯油を使ったセントラルヒーティング・システムも、この住宅のエネルギー効率の向上に役だっている。

ネステハウスの容積は900m3、エネルギー消費量は37kWh/m3/aとなっており、一般の住宅に比べ30%も少なくなっている。

また建物そのものの寿命を長くすることも、エネルギー消費の削減に有効であるが、ネステハウスは安全性、耐久性の面でも工夫がなされている。躯体はフィンランドのような過酷な低温や、大気汚染による影響を少なくするため補強された耐火性のあるプラスチックスで作られている。

さらにリサイクルに対する配慮も資源の有効利用の点から、今後ますますその要請が大きくなってきている。このネステハウスのいくつかの部材は、リサイクル・プラスチックスから作られている。

玄関先のアプローチ部分には、リサイクル・プラスチックスを使った舗床ブロックが敷かれている。また浴室の床もリサイクル・プラスチックスのタイルで仕上げられている。

またこの住宅で使われている全てのプラスチックスはリサイクルが可能か、エネルギー資源として活用できるものになっている。


開発されたエレメント


(1) 外壁部材

外壁部材は両面がプラスチックス・コンポジット材の成型品でカバーされ、その間に発泡ポリスチレン・インシュレーション材を挟んだサンドイッチパネルとなっている。厚さは300mm程度である。

プラスチクッスではなくアルミなど金属板による発泡ポリスチレン・インシュレーション材のサンドイッチパネルはすでにアイスホッケー場や冷凍倉庫、工場などの外壁部材として使われている。

金属板の代わりにコンポジット材を用いたことだけでなく、さらにサンドイッチパネルの中央部にボイド部分を設け、ここに補強用鉄筋を入れコンクリートを流し込んで、耐力壁にしているのも新らしい試みである。


(2) 内壁部材

内壁も外壁と同様な構成になっているが厚さが薄く、中はインシュレーション材だけで耐力壁にはなっていない。


(3) 柱部材

耐力壁の外壁のこない大きなガラス窓面は柱で支えられている。柱はコンポジットプラスチックス管に補強用鉄筋を入れ、コンクリートを充填している。

仕上げられたプラスチクッス材は鉄筋コンクリートの型枠としても使われている。柱としてのパイプは2本あるいは3本をプラスチクッスのプレートで連結して、このプレート部分に開口パネルなどを挟み込んでいる。

柱はIビームのように一体化され強度を出すことができ、さらに外部の柱と内部の柱は、プラスチックスでつながれているのでヒートブリッジにならないよう工夫されている。


(4) 梁部材

梁も柱と同様コンポジットプラスチックス成型品に補強鉄筋を入れコンクリートを充填したものであるが、これは吹抜け部分にある内部の梁だけに用いられている。


(5) 2階床部材

内側に発泡ポリスチレンを入れたコンポジットプラスチックス材のユニットを並べ、これを型枠にしてその中に配筋しコンクリートを流し込んでいる。

重量のある床パネルを並べるのにくらべ捨て型枠となるプラスチックス部材は軽量であるので現場での施工は容易であるし、コンクリートを流し込むのもポンプを使えばそう大変なことではない。


(6) 開口部材

南面に設けたはめ殺しの大開口部分は、コンポジット・プラスチックス材のフレームにより見つけ部分をかなりスリムにしている。

また2階のサンルームへの通路は、片側にはこれまでのPVCのサッシ、その反対側にあたらに開発したコンポジット材フレームのサッシを使っており、そのスリムさが比較できるようになっている。


(7) 大型天窓部材

吹抜け部分の屋根に設けた6m×6mの大きな採光天窓は、プラスチックスのスペース・フレームで支えられている。フィンランドは積雪があるので180kg/uの荷重に耐えるよう設計されている。

このスペース・フレームはプラスチックス・コンポジット材の成型パイプとポリプロピレン(NEPOL)とガラス繊維のモールディングによるジョイント部材で構成されている。ガラス枠は壁と同様コンポジット・プラスチックス材のフレームでスリムになっている。


(8) 屋根部材

屋根にはこれまで以上に厚い発泡ポリスチレンの断熱層が設けられ、その上に新たに開発したコーポリマーの防水シートで仕上げられている。


(9) 階段部材

ストランドマットで補強されたポリプロピレンの成型品で段板とジョイント部材が作られている。すでにある鋳鉄製やアルミダイキャストのものと同様ジョイント部分は左右の回転、上下の高さ調整が可能で、さまざまな形状の階段が構成でき、またさまざまな階高への対応ができる。

手摺はPVCレールが使われており、透明なアクリ板がポリプロピレン製のジョイント部材で手摺と段板に止められている。


(10) バルコニー部材

バルコニーはプレハブ化されたモジュラー部材を組み合わせている。腰壁と床とに隙間のあるもの、腰壁と床とが一体となっているものなど、いくつかのタイプが試作されている。

部材はコンポジット・プラスチックスで、床はポリエステルをベースにした床コーティング材で仕上げられており、これはすでに市販されている。

この実験住宅での開発製品のなかで、このプレハブ化されたバルコニー部材がもっともはやく商品化されるスケジュールにのっている。

ペアガラスとシングルの二重窓が当り前のフィンランド、バルコニーへの出入りのガラスドアも二重になっている。


(11) 基礎部材

すでに商品化されている発泡ポリスチレン成型品を断熱インシュレーションを兼ねた型枠として、鉄筋を配筋しコンクリートを流し込んでいる。


(12) 浴室

浴槽はポリエステルを使った人造大理石で、噴流気泡浴槽となっている。浴槽はハート型で二人がゆったり入ることができる。

浴室の床はリサイクルプラスチックスを使ったタイルで仕上げられているが、サイズが大きすぎて変形が大きく、床面がでこぼこしまっている。

この実験住宅での唯一の失敗であるが、このタイルはプラスチックスを種類ごとには選別せず、回収された全てのプラスチックスを適当に混ぜている。

しかし色についてはある程度選別し、床もグレーと白のタイルを一松模様に貼っている。玄関前のアプローチ部分にもこのタイルが敷かれているが、こちらはブラウンになっている。さらに浴室には市販されているシャワーブースも置かれている。


(13) サウナ

サウナはフィンランドの人々にとっていわば日本の和室に相当するので、プラスチックスハウスの実験住宅といっても、サウナルームは木をふんだんに使っている。

床はポリエステルをベースにした防水仕上げになっている。とかく閉鎖的になりがちなサウナルームであるが、バルコニーとの間にサンルーム的なスペースを設け、そこにPVC製枠にガラスをはめた大きな片引き戸を設け、開放的な雰囲気にしているのが特徴である。


(14) キッチン

ポリエステル人造大理石をワークトップに使った市販のキッチンシステムをそのまま使っている。

キッチンの配置はアイランド型とI型配列の組合せで、I型部分に冷蔵庫、シンク、調理台、食器洗い器といった調理・片付けゾーン、アイランド部分にパーティーシンクと加熱器さらに反対側に簡単な食事ができるカウンターが設けられている。


(15) サンルーム

浴室の外側にサンルームのような小さな温室が設けられている。この床はサウナルームと同様ポリエステル製の防水仕上げとなっているので、草花に気軽に散水することができる。植木鉢もプラスチックス製である。


(16) 暖房システム

床暖房にはプラスチックス製のPEXパイプが使われている。


(17) 太陽光発電ユニット

南面の大開口部には庇を兼ねた40枚の太陽光発電ユニットが取り付けられている。合わせて900Wの電気を作ることができ、夏期には換気装置を動かすのに用いている。余った電力はバッテリーに蓄えられるようになっている。


(18) ハロゲン照明

小さなハロゲンランプ用の低電圧電導レイルとして、プラスチックスのコンポジット材が用いられている。コンポジット材の中に電導材料と絶縁材料を使い分けて1本のレールとしている。またハロゲンランプのソケットは、ポリプロピレンの成型品で作っている。


プラスチックスのリサイクル]

1988年にわが国では488万トンが廃プラスチックスとしてゴミになっている。このうち222万トンが産業廃棄物として、また276万トンが一般廃棄物として出されている。

産業廃棄物の中にはリフォームでのプラスチック浴槽などの取り替えも含まれている。また311万トンが焼却処分され113万トンが埋め立て処分されている。リサイクルされるのはこの差である58万トンでしかない。

また新たなプラスチックスの消費は1988年では997万トンでアメリカの2541万トンについでわが国はプラスチックスの大消費国になっている。

国民一人当りの消費量はアメリカが104kg/年、わが国が81.1、フィンランドは77.8kg/年となっている。さらに新たに消費されるプラスチックスの半分程の量が毎年ゴミになっている。

プラスチックスのリサイクルの難しさは、回収コストの問題と選別の難しさにある。回収コストの問題は他の材料と同様であるが、選別の難しさはプラスチックス特有の問題である。プラスチックスに識別するため物質をあらかじめ混ぜておくことが、識別のために考えられている。

そのためまずはプラスチックスの素性がわかっているPETボトルや、梱包材の発泡プラスチックス、農業用塩化ビニルなどの回収と再資源化が試みられ始めている。

もっとも積極的に進められているのは、魚市場で行われている発泡スチロールの回収とスチロール溶解処理で、年間1万トンの発泡スチロールが回収されている。それでも発泡スチロールの年間生産量の15万トンの6.7%に過ぎない。

これまではコストがやすく加工し易く、使用される用途に適したプラスチッックスの開発が素材メーカーの課題であったが、今はプラスチックス素材メーカーとしてリサイクルのシステムを考えること、またリサイクルしやすいプラスチックスの開発が求められている。

住宅の資材としてリサイクル・プラスチックスの利用には二つのメリットがある。第1に色については関係なく、また性能がリサイクルにより低下しても量でカバーしうるなど、リサイクル資材の利用の場が広いこと。

第2に他の製品に比べ耐用年数が長く、次のリサイクルまでに時間があり、地球上にある総量としてのプラスチックスのリサイクルを考えた場合、将来より効率的なリサイクル技術が開発されるまでの時間稼ぎができることである。

廃棄されたプラスチックスの最終的な利用は、燃料として有効に用いることである。しかしものによっては燃焼の際に有害ガスが出るものもあること、また他のゴミに比べ高温を発生することもあり、プラスチックス処分を前提にした焼却炉が必要となる。

東京都内のゴミ焼却場では、設計温度が低いためプラスチックスは燃焼できず埋め立て処分されているが、自治体によってはプラスチックスを可燃ゴミとして収集しゴミ発電を行っているところもある。


ネガプレハブ住宅としてのネステハウス


現在のプレハブ住宅のほとんどは、工場で生産した部材を現場で組み立てるといった方法が主流であるが、鋳型を現場で組み立て、これにコンクリートなどを流し込むネガプレハブも歴史の中では試みられてきている。その最も有名なものがエジソンのプレハブである。

磁力選鉱機を発明したエジソンは、それをもとに自ら鉄鉱山の経営に乗りだしたが、コストの安いライバルの登場であえなく鉄鉱山の経営に失敗した。その損失をカバーするため1898年セメント事業に参入した。

エジソンはセメントの需要を増やすため、コンクリート住宅の量産システムを考案したのは1907年のことであった。それまでのコンクリート住宅の量産システムは、工場で鉄筋コンクリート板をプレキャストし、これを現場に運び組み立てるものであった。

この工法はPC(プレキャストコンクリート)工法として、現在でも多く用いられている。当時すでに窓なども一体で打ち込まれたPC工法住宅が建設されていた。

これに対してエジソンのシステムはネガプレハブと呼ばれるもので、現場に工場生産された鋼製型枠と鉄筋を持込み組み立てる。ちょうど鋳物の型のようにこれで住宅の原型ができあがる。そこにコンクリートを流し込み、型枠をはずすと、住宅ができあがるといったものである。

しかしこのアイデアは、建築の専門家からするときわめて非常識なもので、そのプロジェクトには多くの建築家が反対した。彼らの意見はコンクリートを流し込んでも、隅々まで均等に流れ込むなどということはありえないというものであった。

重い骨材が下に沈み、モルタルと分離してしまうこと、さらに表面に砂利が出たり、空気の孔が開いたりしてきたなくなるはずだといった指摘がなされた。

そんなことでひるむエジソンではない。それでは自分のアイデアを実証しようと、2階建ての住宅を作ることにした。まずべた基礎を兼ねて地下室の床をコンクリートで作り、その上に鋼製型枠を組み立て、その中に鉄筋を入れていった。

コンクリートミキサーでコンクリートを練り、組立櫓の上に置かれたタンクに送り込み、タンクからは何本かの樋が出ていて、壁や床スラブにコンクリートが流れ込むというものであった。

鋼製型枠は6日後に取り除かれた。そこには多くの専門家の意見に反して、美しいコンクリート住宅ができあがっていた。電線、給水管、給湯管もコンクリートの中に一体として打ち込まれていた。浴槽、洗濯用タブまでコンクリートで一体として作られていた。

しかし当然ではあるがこの住宅はあまり普及しなかった。まだまだ大量生産の画一的な住宅を受け入れる環境に当時の世界はなかったのである。

エジソンの鋼製型枠によるネガプレハブが実用化されたのは、第2次世界大戦が終わってからである。

フランスのトラコバ4システムは、日本ではトンネル工法とも呼ばれているが、長さ3m70cm、高さ2m50cm、幅5m20cm〜6mといった折り畳み式の門型の鋼製型枠をならべ、壁となる型枠の間に鉄筋、さらに床スラブとなるその上に鉄筋、配管などが組み込まれたユニットが置かれ、コンクリートが打設される。その上にカバーが掛けられボイラーによる蒸気養生がなされる。

門型の鋼製型枠は、一定期間後に折り畳まれ横にスライドされ、上階に載せられる。この繰り返しで高層アパートの躯体が完成する。

このネステハウスではプラスチックスを仕上げを兼ねた捨て型枠として基礎、柱、梁、壁、床などで多用している。

軽量で耐久性のあるプラスチックスを捨て型枠として利用し、現場での組立作業を容易にし、これに自動化しやすい流し込み作業を行うといった、新世代のネガプレハブはもっと注目されてもよいのではないだろうか。


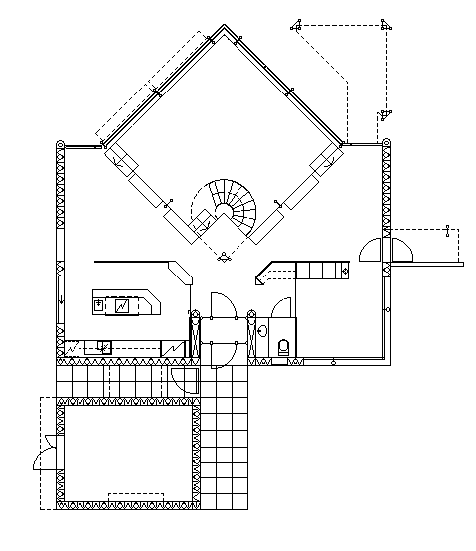
1階平面図

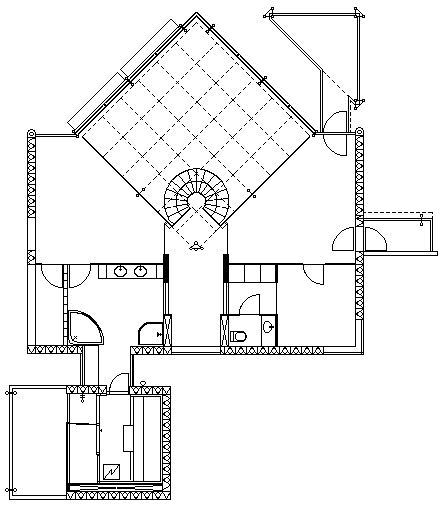
2階平面図

断面図


Last modified: Sun May 5 01:30:00 JST 1996
(c) Dr.Shigeaki Iwashita

ホームページに戻る。